Mount Archer via Woodford 12.5 Acres

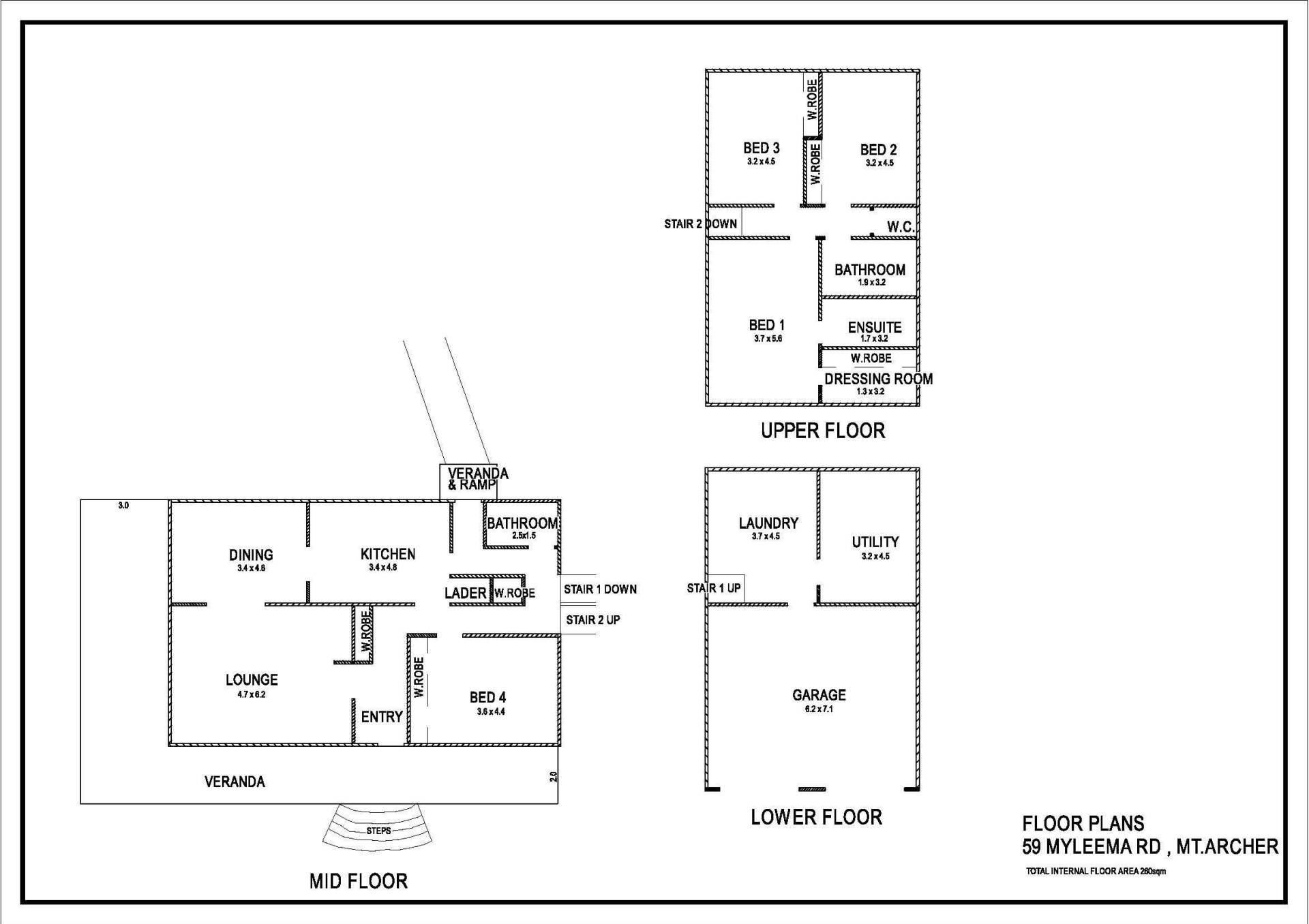
Outstanding 4 bedroom split level home having a large kitchen with stone top benches, dishwasher, gas cook top & large pantry, dining room, lounge room, en-suite & walk in robe off the main bedroom, 2 main bathrooms, 3 toilets, huge laundry, ultilites room or 5th bedroom, double lock up garage, double carport & large verandahs on 2 sides.

Other improvements include ceiling fans throughout, air conditioning, bore, rainwater tanks, old dairy building, stable, hay shed, garden shed & green house.

This is an outstanding property with spectacular rural views & would suit horses or hobby farmer.

Health reasons force sale.

Call Pauline on 0411 651 991 or Garry on 0418 783 288

4 3 4 5.02 ha
Address 59 Myleema Rd, Mount Archer
Price SOLD
Property Type Residential
Property ID 877
Category House
Land Area 5.02 ha

Agent Details

Garry Brown photo

Garry Brown

0418 783 288
View Profile